ID CP2757119

Penthouse 2 camere independent energetic panouri solare

ID CP2757119

132,500 € + 21% TVA

Apartament cu 2 camere de vânzare
Theodor Pallady, Bucuresti
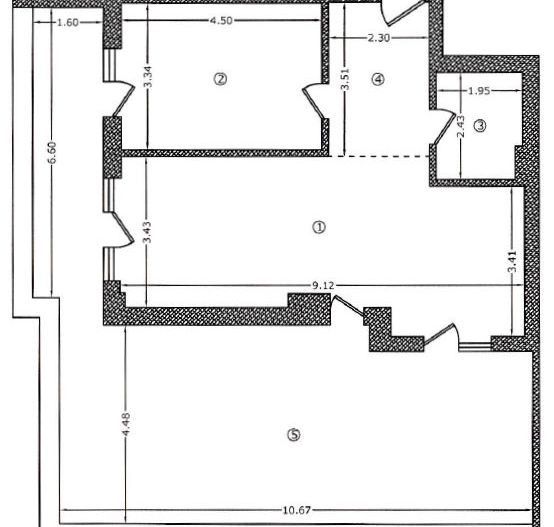
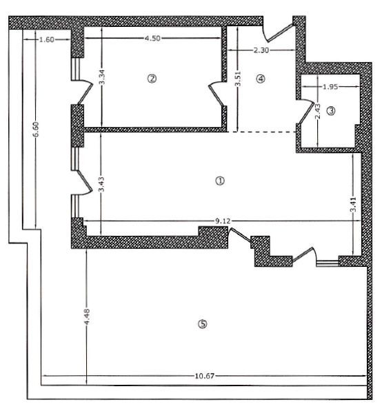
113.2 mp
2025

Nota: Pozele sunt reale din complex !

Oferta noastra completa o gasiti pe www.bb-imobiliare.ro

Apartamentul face parte dintr-un ansamblu rezidential compus din 10 imobile cu regimul de înălțime S+P+2E+3R a câte 16 apartamente cu 2, 3 și 4 camere. Locuințele sunt proiectate cu suprafețe generoase la interior și terase spațioase, în stil mediteranean, la exterior, realizate după un concept unic în România, pentru un astfel de ansamblu imobiliar.

Fiecare apartament va fi racordat la propriul sistem de panouri fotovoltaice, care le va da posibilitatea proprietarilor locuinței să devină prosumatori (producători și consumatori de energie) încă din momentul în care vor primi cheile caselor și să se bucure de costuri de întreținere minime. Aceasta pentru că panourile fotovoltaice, care transform lumina soarelui în energie electrică, au capacitatea de a susține toate consumurile caselor pe timp de vară, acoperind și o parte importantă din costuri, în sezonul rece.

În premieră, toate apartamentele din imobil vor fi dotate cu pompe individuale de căldură Samsung, alimentate de panourile fotovoltaice aferente apartamentului.

Apartamentele vor dispune, în dotarea standard, de un sistem inteligent de ventilare și purificare a aerului NovingAIR, care va reduce cu peste 80% pierderile de energie, atât vara, cât și pe timp de iarnă. Cu ajutorul acestor aparate interconectate, care vor asigura aerisirea locuințelor, recuperând căldura se anulează risipa de energie provocată de deschiderea ferestrelor (iarna- risipă de căldură; vara – risipă de aer rece)

Pentru ca locuințele să se apropie cât mai mult de standardul nZEB (nearly Zero Energy Building, în română: casa cu consum de energie aproape zero) toate aceste facilități sunt completate de soluții de izolare a pereților exterior cu vată bazaltică de 15 cm grosime.

Sistemele de tâmplărie Deceuninck cu înaltă eficiență energetic vor completa sistemul integrat de izolație al apartamentelor.

Instalațiile de încălzire în pardoseală vor avea efect direct, în economia pe termen lung realizată pentru bugetul familiei, prin reducerea la maximum a costurilor pentru apă caldă și căldură.

Aceste case chiar își plătesc singure facturile pentru energie electrică, apă caldă și încălzire!

Urban Pro este mai mult decât un complex rezidențial - este rezultatul unei viziuni moderne asupra locuirii urbane. Cu o experiență solidă în dezvoltarea proiectelor imobiliare, ne angajăm să oferim locuințe de calitate superioară, gândite pentru un stil de viață contemporan, sustenabil și confortabil.

Fiecare detaliu contează - de la designul mediteranean al teraselor până la soluțiile eficiente energetic integrate în apartamente. În calitate de dezvoltator responsabil, investim în tehnologii verzi pentru a asigura costuri reduse de întreținere și un mediu mai curat pentru viitor.

Citește mai mult

  • Tip apartament
    Penthouse
  • Compartimentare
    Decomandat
  • Număr camere
    2
  • Dormitoare
    1
  • Număr bucătării
    1
  • Număr băi
    1
  • Etaj
    3
  • Suprafață utilă
    113.2 mp
  • Suprafață construită
    126 mp
  • Suprafață terasă
    55.04 mp
  • Disponibilitate
    2025
  • Confort
    1
  • Stare interior
    Ultrafinisat
  • Anul finisării
    2025
  • Număr terase
    1
  • Imobil
    Bloc de apart.
  • Stadiu construcție
    Finalizată
  • An construcție
    2025
  • Construcție nouă
    Da
  • De la dezvoltator
    Da
  • Tip construcție
    Beton
  • Număr etaje clădire
    3

Facilități

Acces pentru persoane cu dizabilități
Aer condiționat
Apă
Apometre
Boxă la subsol
Bucătărie deschisă
Cadă
Canalizare
CATV
Contor electric
Curent
Curte comună
Facilități sportive
Faianță
Ferestre care se deschid
Garaj subteran
Geamuri cu izolație fonică
Geamuri cu protecție UV
Geamuri tripan
Glet
Gresie
Iluminat stradal
Încălzire prin pardoseală
Interfon
Internet
Irigații
Izolație exterioară
Lift
Loc de joacă copii
Mijloace de transport în comun
Mobilat parțial
Panouri solare
Parcare biciclete
Parcare deschisă
Parchet
Pază
Pază permanentă
Pompă de căldură
Șapă
Spații agrement
Străzi asfaltate
Supraveghere video
Telecomandă poartă acces auto
Telecomandă poartă garaj
Telefon
TV
Ușă intrare metal
Uși interior celulare
Vedere spre oraș
Vopsea lavabilă
Wireless
Narcis Ene - B & B Imobiliare
Narcis Ene
Broker Imobiliar

0771564564


Solicită chiar acum o vizionare
Telefon
Sună acum Solicită vizionare
Necesare:

Site-ul nu poate funcționa corect fără aceste cookie-uri. Vezi cookie-urile

Statistică:

Strângem statistici anonime despre voi, vizitatorii unici, pentru a vă îmbunătăți experiența dumneavoastră. Vezi cookie-urile

Marketing:

Pentru a ne promova mai eficient serviciile noastre, folosim cookies pentru a vă identifica și a vă oferi proprietăți și servicii personalizate. Vezi cookie-urile

Acest site folosește cookies, află detalii. Alege ce tipuri de cookies dorești să permitem: