ID CP2834105

Casa complet mobilata 5 camere 3 bai curte generoasa

ID CP2834105

309,900 €

Casă / Vilă cu 5 camere de vânzare
23 August (Catelul), Bucuresti
155 mp
2012

Aceasta nu este doar o casă, ci un colț de natură atent îngrijit, în care te simți acasă din primul moment.

Localizare: acces rapid (5 minute) către A 0 si A 2, școli internaționale (ICHB - Liceul Teoretic International de Informatica, ISB - International School of Bucharest la care se adauga infrastuctura scolara a Sectorului 3, Centrul Comercial Pallady cu IKEA, Decathlon, Auchan, Jumbo, Metro, Kaufland, Lidl,

Suprafață utilă: 155 mp

Teren: 500 mp

Regim de înălțime: Parter + Etaj + Pod (P+1E+P)

An construcție: 2012, modernizata complet in 2020.

Curte generoasa cu deschidere stradala de 19 mp.

Racordata la utilitati: energie electrica, gaz, canalizare.

Casa se vinde complet mobilata si utilata si dispune de:

-Centrala proprie cu calorifere.

-Camere spatioase si luminoase

-Bucatarie inchisa , utilata si mobilata.

-Dormitoare cu spatii de depozitare (dresing in fiecare camera).

-Bai utilate cu aerisire directe ( geam )

Compartimentarea ideala compusa din :

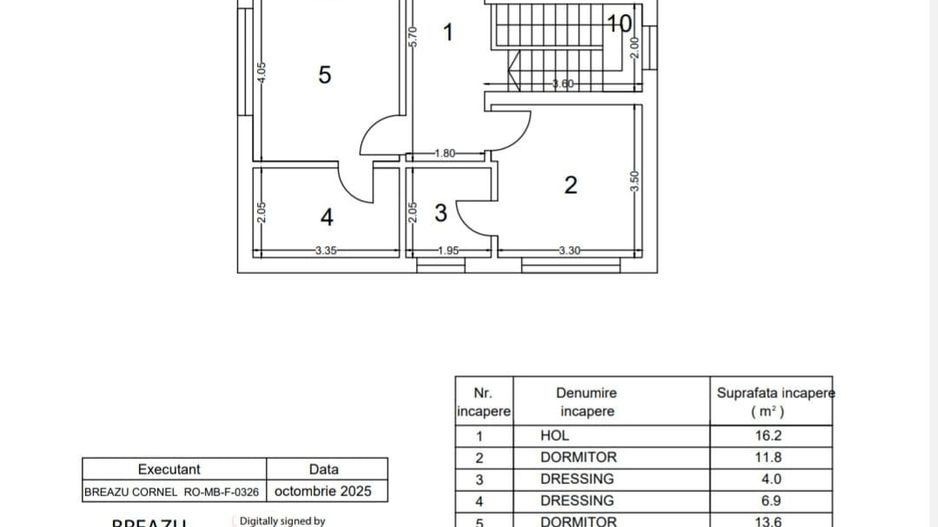
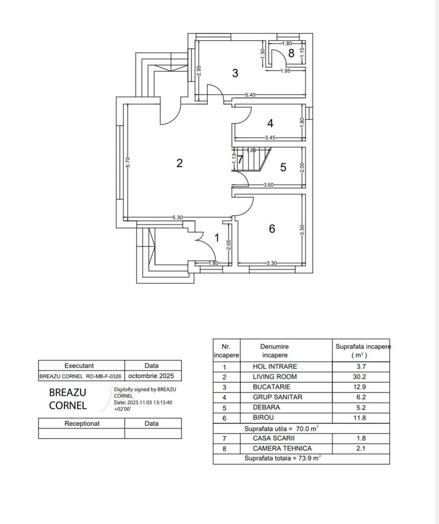
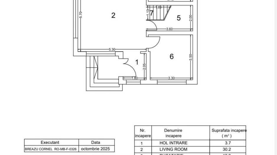
Parter : hol intrare ,living,bucatarie inchisa, depozitare ,terasa, un dormitor , grup sanitar si scara.

Etaj 1 compus din : 3 dormitoare cu dresing , doua bai si un balcon acces in zona de pod ( zona depozitare generoasa ).

info : Poze reale cu propietatea .

Nr telefon : 0771.564.564

Citește mai mult

  • Număr camere
    5
  • Dormitoare
    4
  • Număr bucătării
    1
  • Număr băi
    3
  • Geam la baie
    Da
  • Număr balcoane
    2
  • Număr terase
    2
  • Număr locuri parcare
    2
  • Disponibilitate
    Imediat
  • Tip casă
    Individual
  • Stare interior
    Finisat modern
  • Anul finisării
    2014
  • Suprafață utilă
    155 mp
  • Suprafață construită
    228 mp
  • Suprafață construită la sol (Amprentă)
    114.0 mp
  • Suprafață teren
    500 mp
  • Suprafață curte
    380 mp
  • Suprafață curte liberă
    360 mp
  • Suprafață terasă
    20 mp
  • Deschidere
    19 m
  • Acoperiș
    Tablă
  • Stadiu construcție
    Finalizată
  • An construcție
    2012
  • Construcție nouă
    Da
  • Tip construcție
    Beton
  • Număr etaje clădire
    1
  • Are pod
    Da

Facilități

Acoperiș
Aer condiționat
Apă
Bucătărie închisă
Bucătărie mobilată
Cabină de duș
Cadă
Calorifere
Canalizare
CATV
Centrală proprie
Contor electric
Contor gaz
Curent
Dressing
Faianță
Ferestre PVC
Frigider
Gaz
Geamuri termopan
Grădină proprie
Gresie
Hotă
Iluminat stradal
Internet
Izolație exterioară
Mașină de spălat rufe
Mijloace de transport în comun
Mobilat complet
Parcare deschisă
Parchet laminat
Scară interioară
Străzi asfaltate
Telefon
TV
Ușă intrare metal
Uși interior celulare
Vopsea lavabilă
Narcis Ene - B & B Imobiliare
Narcis Ene
Broker Imobiliar

0771564564


Solicită chiar acum o vizionare
Telefon
Sună acum Solicită vizionare
Necesare:

Site-ul nu poate funcționa corect fără aceste cookie-uri. Vezi cookie-urile

Statistică:

Strângem statistici anonime despre voi, vizitatorii unici, pentru a vă îmbunătăți experiența dumneavoastră. Vezi cookie-urile

Marketing:

Pentru a ne promova mai eficient serviciile noastre, folosim cookies pentru a vă identifica și a vă oferi proprietăți și servicii personalizate. Vezi cookie-urile

Acest site folosește cookies, află detalii. Alege ce tipuri de cookies dorești să permitem: